Bilocale in vendita

Rho, Via Dante
€ 260.000
2 locali 2 locali
75 Mq 75 Mq
1 bagno 1 bagno

Bilocale in vendita

Rho, Via Dante

Descrizione annuncio

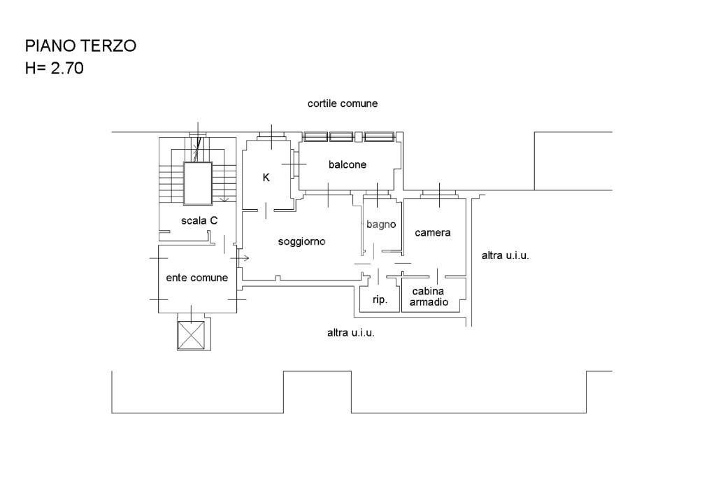
CENTRO STORICO - AMPIO BILOCALE

In una posizione strategica nel centro storico di Rho, a pochi minuti a piedi da tutti i principali servizi - tra cui negozi, bar, ristoranti, farmacie, scuole e aree verdi - proponiamo in vendita un ampio bilocale, ideale per chi cerca comfort e comodità senza rinunciare alla tranquillità. La stazione ferroviaria di Rho è comodamente raggiungibile a piedi in soli 5 minuti.

Situato al terzo piano di un elegante complesso residenziale, l’appartamento si affaccia sul curato giardino condominiale interno, arricchito da alberi, fiori e una graziosa fontana, che regalano un’atmosfera rilassante e riservata.

L’immobile si presenta in buone condizioni ed è così composto: ingresso, ampio soggiorno, cucina abitabile, spaziosa camera matrimoniale e bagno finestrato con box doccia. Il vero punto di forza è il terrazzo coperto e loggiato, accessibile dal soggiorno, da cui si può godere di una splendida vista aperta sulla città.

Grazie all’ottima esposizione, l’appartamento è luminoso per tutta la giornata, offrendo ambienti ariosi e piacevoli da vivere.
Completa la proprietà una comoda cantina al piano interrato.

Mostra tutto

Nelle vicinanze

Trasporto pubblico Trasporto pubblico
Rho
Rho
420 m
Corso Europa - Largo Mazzini (Pasquè)
Corso Europa - Largo Mazzini (Pasquè)
140 m
Corso Garibaldi, 79 (Rho)
Corso Garibaldi, 79 (Rho)
190 m
Ricariche auto elettriche Ricariche auto elettriche
Rho Comune
350 m
Rho Parcheggio delle Poste
500 m
Eneldrive Volta
670 m
Rho Biblioteca Comunale
1,4 Km
Distributore Q8
1,5 Km
Scuole Scuole
Scuola Primaria Guglielmo Marconi
100 m
Istituto superiore Olivetti
390 m
Mani di forbici
460 m
I.T.I.S. Stanislao Cannizzaro
540 m
Istituto San Michele
550 m
Farmacia Farmacia
Farmacia Meazza
250 m
Farmacia San Vittore
270 m
Parafarmacia Salute
310 m
Farmacia Stazione
330 m
Farmacia San Michele
440 m
Ospedali Ospedali
Ospedale di Circolo - Rho
1,1 Km
Ospedale "Giuseppe Casati"
2,2 Km
Supermercati Supermercati
Eurospin
380 m
Il Gigante
480 m
Carrefour Market
590 m
U2 supermercato
740 m
Leader Price
1,4 Km
Negozi Negozi
Hoop
40 m
Carrefour Express
190 m
Moda sul Corso
200 m
Ciao Moda
200 m
Satin
210 m
Bar Bar
Bar Stazione
400 m
Al santuario
700 m
Rock n Roll
910 m
Bar
950 m
Bar Simplon
1,1 Km
Ristoranti Ristoranti
Il Vicolo
190 m
Ristorante Al Cantuccio
190 m
Pizzeria del Corso
220 m
La Corona d'Oro
250 m
Ristorante Passeggeri
260 m
Mostra tutto

Caratteristiche

Rif.:
61129857
Piano:
3 di 4 con ascensore (Piano alto)
Terrazzi:
1
Camere da letto:
1
Arredamento:
Assente
Condizionamento:
Autonomo
Mostra tutto
Prezzo Prezzo
€ 260.000
Rata mutuo Rata mutuo
€ 1.225 / mese
Spese annue Spese annue
€ 2.200
Proponi il tuo prezzoProponi il tuo prezzo

Classe Energetica

E
E
E
E
E
E
E
E
E
EP globale non rinnovabile:
110.55 kW h/m² anno
EP invernale del fabbricato:
EP estiva del fabbricato:
Anno di costruzione:
2007
Riscaldamento:
Centralizzato
Tipo impianto:
A radiatori
Tipo alimentazione:
Metano

Ti interessa visionare l'immobile?

Fissa un appuntamento  Fissa un appuntamento

Richiedi informazioni

Clicca su Leggi per aprire l'informativa
* Questi campi sono obbligatori

Calcola il tuo mutuo

Semplice e senza impegno
Anticipo

( % )
Mutuo

( % )

pochi semplici passi

inserisci i tuoi dati
Questionario completato
Grazie per aver richiesto un appuntamento senza impegno con un nostro Consulente del Credito e Assicurativo.

Hai inserito correttamente tutti i dati necessari e a breve riceverai una e-mail con un link da convalidare per inviare i tuoi dati.
Affiliato
Nuovi Orizzonti Srl
Largo Mazzini, 7 20017 Rho (MI)

Il nostro staff


  • Fabio Clerici
    Affiliato

  • Barbara Daguati
    Coordinatrice

  • Marcella Gianesella
    Responsabile

  • Loredana Lecini
    Collaboratrice
Largo Mazzini, 7 20017 Rho (MI)
Zona: Rho Centro
Mostra su mappa
Orari: Dal Lunedi al Venerdì dalle ore 09.30 alle ore 12.30 e dalle ore 14.30 alle ore 20.00. Sabato dalle ore 09.30 alle ore 12.30 e dalle ore 14.30 alle ore 18.00.
Affiliato
Nuovi Orizzonti Srl
Largo Mazzini, 7 20017 Rho (MI)

2026 Tecnocasa Franchising S.p.A. - P. IVA 08365160152 - Via Monte Bianco 60/A 20089 Rozzano (MI). Ogni agenzia ha un proprio titolare ed è autonoma. Privacy policy | Policy utilizzo | Cookie policy